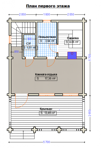
Баня "Изобилие 2"
| Размеры – 5,7х8,35м | Площадь застройки – 52 кв.м. | Цена |
| Общая площадь – 90 кв.м. | Срок строительства – до 30 дней | 2 160 000 руб. |
Базовая комплектация
| Фундамент | Мелко заглубленный в три ряда - блоки 200х200х400мм |
| Первый этаж | |
| Высота потолков | 2300 мм. Парная 2150 мм |
| Полы | Обвязка 150х150 мм, Лаги 100х150 мм Черновой пол ОСП3-6. Утепление с пароизоляцией 100 мм. Настил пола — шпунтованная доска 36 мм. |
| Стены | Профиллированный брус 145х145 мм. |
| Внутренние перегородки | Брус профиллированный 95х95 мм |
| Потолок | Балки обрезная доска 40х150мм. Подшит вагонкой. Утепление 150 мм. Парная 200 мм (потолок в парной подшит осиновой вагонкой с фольгой в два слоя) |
| Лестница | Двухмаршевая поворотная |
| Второй этаж | |
| Высота потолков | 2300мм по центру |
| Потолок | Подшит вагонкой по балкам, утепление 100 мм |
| Стены | Профилированный брус 145х145м |
| Балкон | Открытый 14кв.м. |
| Крыша | Металлочерепица цвет на выбор |
| Двери | Входная дверь металлическая. Межкомнатные двери банные. Балконная дверь пластиковая. |
| Окна | Пластиковые стеклопакеты белые |
| Крыльцо | Открытое 14 кв.м. с ограждением и с заходной лестницей. |
| Доставка | От города Бронницы до 100 км бесплатно. |
По Вашему желанию могут быть дополнения и изменения проекта. Для получения информации оставьте заявку на сайте или позвоните в офис продаж.
Категория:





