Отправить заявку

Ностальгия

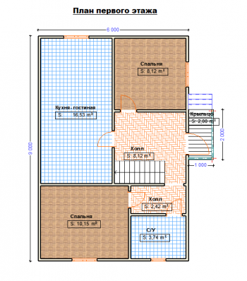
Планы объекта

Табы объекта

Каркас 100
Размеры – 6,0х9,0 м Площадь застройки – 56 кв. м. Цена
Общая площадь – 90 кв.м. Срок строительства – до 40 дней 1 674 700 руб.

Базовая комплектация

Первый этаж
Высота потолков 2500 мм.
Полы Обвязка 150х150 мм. Лаги 150х40мм. Утепление 100мм. Черновой пол -доска 20-25мм. Настил пола — шпунтованная доска 36 мм.
Стены Каркас 100х40мм. Утепление 100 мм. Обшит вагонкой с парогидроизоляцией.
Внутренние перегородки Каркас обшит с двух сторон вагонкой. Шумоизоляция 50 мм.
Потолок Балки обрезная доска 150х40мм. Шумоизоляция 100мм. Шпунтованная доска 36 мм.
Лестница Одномаршевая с перилами.
Второй этаж
Высота потолков 2400 мм.
Полы Настил пола — шпунтованная доска 36 мм.
Стены Каркас 100х40мм. Утепление 100 мм. Обшит вагонкой с парогидроизоляцией.
Внутренние перегородки Каркас обшит с двух сторон вагонкой. Утепление с шумоизоляцией 50 мм.
Потолок Обшит вагонкой с пароизоляцией. Утепление 100мм.
Крыша Металлочерепица (цвет на выбор).
Двери Входная дверь металлическая. Межкомнатные двери филенчатые или ламинированные.
Окна Пластиковые стеклопакеты белые
Доставка От города Бронницы до 100 км бесплатно.

По Вашему желанию могут быть дополнения и изменения проекта. Для получения информации оставьте заявку на сайте или позвоните в офис продаж.

Каркас 150
Размеры – 6,0х9,0 м Площадь застройки – 56 кв. м. Цена
Общая площадь – 90 кв.м. Срок строительства – до 30 дней 1 897 300 руб.

Базовая комплектация

Первый этаж
Высота потолков 2500 мм.
Полы Обвязка 150х150мм. Лаги 100х150 мм. Черновой пол — доска 20-25мм. Настил пола — шпунтованная доска 36мм. Утепление 150мм.
Стены Каркас 150х40мм, утепление 150мм. Наружняя отделка USB, внутренняя отделка вагонка. Пароизоляция в два слоя.
Внутренние перегородки Толщина 70мм, шумоизоляция 50мм, с двух сторон вагонка с пароизоляцией.
Потолок Балки - обрезная доска 150х40мм. Подшит вагонкой с пароизоляцией. Шумоизоляция 100мм.
Лестница Одномаршевая с перилами.
Второй этаж
Высота потолков 2400 мм.
Полы Настил пола — шпунтованная доска 36мм. Утепление 100 мм.
Стены Каркас обшит вагонкой с пароизоляцией. Утепление 150мм.
Внутренние перегородки Каркас обшит вагонкой с пароизоляцией. Утепление 100 мм.
Потолок Обшит вагонкой с пароизоляцией. Утепление 150мм.
Крыша Металлочерепица (цвет на выбор)
Двери Входная металлическая, межкомнатные филенчатые или ламинированные.
Окна Пластиковые стеклопакеты белые
Доставка От города Бронницы до 100 км бесплатно.

По Вашему желанию могут быть дополнения и изменения проекта. Для получения информации оставьте заявку на сайте или позвоните в офис продаж.

Категория: